Новое Токсово пос.
190 000 000 ₽
112 466 ₽
/м2
12 комн. 1689.4 m2 4 Этажа
Новое Токсово пос. Новое Токсово пос.
- Ипотека от 9%
- Скачать презентацию
- Мы уверены в юридической
чистоте предлагаемых объектов - В стоимость объекта входит консультация дизайнера или архитектора на Ваш выбор
Новое Токсово пос.
Арт. 74435782
Предлагаем Вашему вниманию абсолютно уникальный проект - спортивно-гостиничный комплекс в садоводческом комплексе "Новое Токсово" в 20 км от КАД, имеет прекрасный подъезд, в том числе и грузового транспорта.
На территории располагается спортивная площадка с искусственным газоном 18*32 м, домик для охраны, автостоянка и склад. Предполагается устройство зоны барбекю и детской игровой площадки.
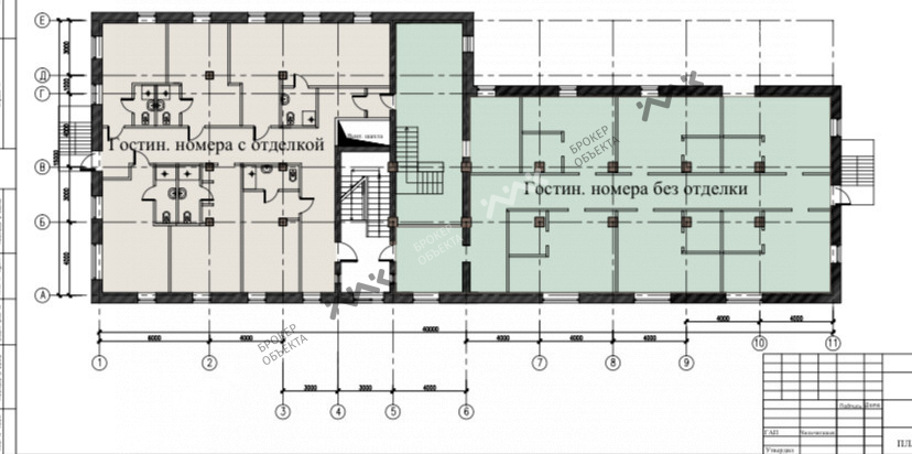
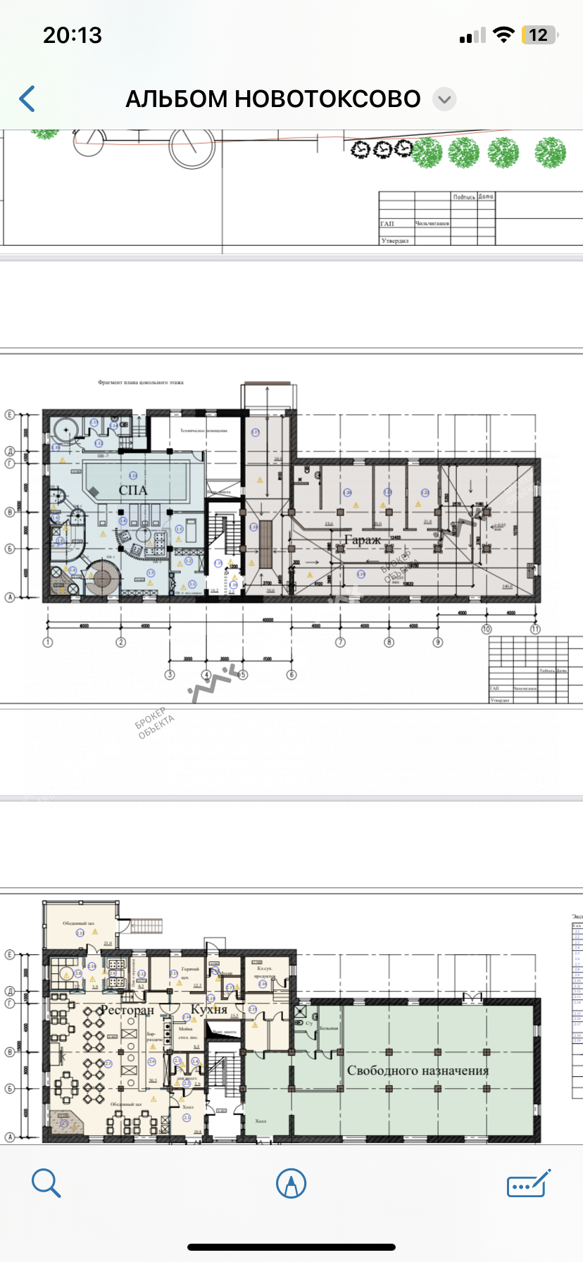
Комплекс представляет собой двухэтажное здание с подвалом и мансардным этажом.
В подвале располагается шикарная СПА зона с бассейном, сауной, хамамом, фитобочками. Также гараж с оборудованной мойкой и вспомогательными помещениями.
На первом этаже располагается ресторан и зона свободного назначения без отделки. На втором этаже - гостиничные номера - как существующие так и без отделки. Мансардный этаж занимает часть здания, без отделки.
Конструктивное решение:
Фундамент - монолитная ж/б, стены подвала - монолитные ж/б, перекрытия - монолитные ж/б, ограждающие стены - газобетон, несущие колонны кирпичные и монолитные, внутренние перегородки - кирпичные.
Общая площадь здания - 1752 кв. м., площадь подвала - 503 кв. м., площадь первого этажа - 524 кв. м, площадь 2-го этажа - 503 кв. м, высота потолков в подвале - 3,2 м, на первом этаже - 3,3 метра, втором - 2,9 м.
Проведен газ!
Комплекс идеально подходит под отель, СПА центр, спортивный или гостиничный комплекс.
Перспективная и активно развивающаяся локация совсем рядом с городом, несколько минут от крупных магазинов, Северный Склон, тропа здоровья, вся инфраструктура в нескольких минутах езды.
Приглашаем Вас на просмотр!
Характеристики
Номер лота
№ 74435782
Город
Новое Токсово пос.
Тип дома
монолитный
Потолки
3.2
- Похожие
- Аналогичная цена
- Район












































