
Восстания ул., д.7
Центральный р-н.
Центральный р-н.
350 000 000 ₽
257 353 ₽
/м2
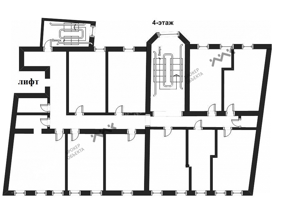
20 комн. кв. 1360 m2 4/4 этаж
СПБ Восстания ул., д.7
- Скачать презентацию
- Мы уверены в юридической
чистоте предлагаемых объектов - В стоимость объекта входит консультация дизайнера или архитектора на Ваш выбор
Восстания ул., д.7
Арт. 25024606
Предлагается в продажу фасадная часть здания 1360 кв.м. с отдельным входом с улицы, собственной парадной, помещения от второго этажа (без пом. 1-го этажа), в пред чистовой отделке с вентиляцией и кондиционированием в одной из лучших деловых локаций Центрального района ул. Восстания, дом 7.
Виды использования:
отель, бизнес-центр, апартаменты, элитный жилой бутик с лаунж зоной на мансардном этаже.
В пешей доступности от Московского вокзала и главной улицы Петербурга:
- Невский проспект – 265 метров,
- Ст. метро – Площадь Восстания – 239 метров.
- Собственная парадная, зона ресепшен на 1-этаже.
- Отдельный вход с улицы
- 30 квартир в жилом фонде
- + 10 апартаментов на мансардном этаже
- Шахта лифта от 2-го Этажа
- Готовый пакет документов для перевода в нежилой фонд (по желанию, две опции)
- Общая площадь входа 2-го, 3-го, 4-го, мансардного этажей - 1360 кв.м.
- Материал стен: кирпич
- Перекрытия: железобетонные
- Замена всех коммуникаций - 2024 г.
- Система приточно-вытяжной вентиляции и кондиционирования - осень 2024г.
- Центральное отопление.
- Высота потолков: 3.64 м
- Выделенная электрическая мощность – 150 кВт.
- Идеально подходит под гостиницу на 39 номеров.
- Фасадная часть здания располагает центральным входом и возможностью установки лифта, балкон.
- Паркинг в торговом центре напротив или в платной зоне перед зданием.
Характеристики
Номер лота
№ 25024606
Город
Санкт-Петербург
Район
Центральный
Улица
Восстания ул.
Тип дома
кирпичный
Этаж
4/4
Потолки
3.64

- Похожие
- Аналогичная цена
- Район

















































